Wielgie, Zaduszniki

Dom na sprzedaż

Opis nieruchomości

AGDOM Nieruchomości ma ogromną przyjemność przedstawić Państwu na sprzedaż wyjątkową nieruchomość gruntową zabudowaną w powiecie lipnowskim, gmina Wielgie, województwo kujawsko-pomorskie, w miejscowości Zaduszniki.

ODLEGŁOŚĆ OD CENTRUM WŁOCŁAWKA TO ZALEDWIE 20 KM-  ok .25 min. autem, od Lipna to tylko 18km , 20 min autem.

ZAPRASZAMY NA BEZPŁATNĄ PREZENTACJĘ.


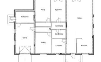
Do sprzedaży oferowany jest niepowtarzalny dom wolnostojący, parterowy, z możliwością adaptacji poddasza, z garażem w bryle, usytuowany na dwóch działkach o łącznej powierzchni 3914 m kw.
Na jednej z działek o powierzchni 1600 m kw usytuowany jest dom oraz budynki usługowo-handlowo-gospodarcze z dwiema bramami wjazdowymi.
Na drugiej działce o powierzchni 2314 m kw znajdują się pozostałe budynki, sad, niewielki staw oraz brama wjazdowa.

Nieruchomość mieszkalna w stanie surowym otwartym budowana od 2016.r z suporeksu zgodnie z indywidualnym projektem architektoniczno - budowlanym.

W planach przewidziano:
-salon z kuchnią
-3 sypialnie
-łazienka z wc
-garderobę
-hall
-garaż
-kotłownię.

Więźba dachowa drewniana, pokryta blachodachówką.
Dach wielospadowy.


Na wyróżnienie zasługuje niezwykle interesująca forma architektoniczna budynku, która ma za zadanie wpuścić do domu większą ilość naturalnego światła.
Całość stanowi niepowtarzalną, nowoczesną bryłę.

Wykonano instalację kanalizacyjną odpływową podłączoną do przydomowej oczyszczalni ścieków.
Energia elektryczna - doprowadzona do skrzynki na działce.
Woda na działce.
W projekcie przewidziano ogrzewanie na ekogroszek.
Posesja ogrodzona siatką, z trzema suwanymi bramami.
Dojazd do domu z drogi asfaltowej nr 351.

Ta niezwykła nieruchomość usytuowana jest na zagospodarowanej licznymi naszadzeniami pięknych krzewów,  z miejscem na relaks, grilla, spotkania rodzinne.
To również idealne miejsce, dzięki zabudowaniom gospodarczym, do prowadzenia różnego rodzaju działalności nieuciążliwej.

Zaduszniki to niezwykle urokliwa miejscowość. Lokalizacja tejże posiadłości jest ogromnym atutem dla osób szukających nieruchomości, które mają potrzebę życia w wyjątkowym miejscu łączącym naturę i możliwość pracy a jednocześnie szybkiego dojazdu do aglomeracji miejskich.
To doskonała propozycja dla osób ceniących ciszę i spokój z daleka od zgiełku miejskiego.
Niedaleko znajduje się szkoła, przychodnia, sklep wielobranżowy i spożywczy, apteka i przystanek autobusowy.

Jeśli marzycie Państwo o nowoczesnej nieruchomości, do wykończenia według własnych potrzeb i gustu, przestronnej, funkcjonalnej na prześlicznej działce, w bardzo atrakcyjnej lokalizacji, zapraszamy koniecznie do kontaktu z nami, byśmy mogli Państwu z ogromną przyjemnością zaprezentować tą PEREŁKĘ.

TEJ OFERTY NIE MOŻNA PRZEOCZYĆ !!!

Nieruchomość z wielkim potencjałem mieszkalnym , gospodarczym , biznesowym.

Cena: 530 000zł - do negocjacji

Zapraszamy na prezentację a w razie jakichkolwiek pytań jesteśmy do Państwa dyspozycji:
Agnieszka Szarwas tel. 731 366 966, Zbigniew Nowakowski tel. 662 086 123

Zakup oraz sprzedaż w naszym Biurze AGDOM Nieruchomości to gwarancja NISKIEJ PROWIZJI i NAJWYŻSZEGO POZIOMU BEZPIECZEŃSTWA całej transakcji , podparte wiedzą z zakresu prawa i obrotu nieruchomościami, oszczędność czasu i kosztów, kompleksowość, wsparcie od pierwszej prezentacji do przekazania kluczy od nieruchomości. Zapewniamy doradztwo i pomoc w rozwiązywaniu  spraw dot. stanu prawnego nieruchomości, w przygotowywaniu postępowań spadkowych i innych zagadnień. 

Działalność nasza charakteryzuje się indywidualnym podejściem do każdego klienta w bardzo przyjemnej atmosferze współpracy pełnej zaangażowania i profesjonalizmu.

Zachęcamy do sprawdzenia  w Google opinii klientów naszego Biura Nieruchomości AGDOM 


Pomagamy bezpłatnie w uzyskaniu kredytu hipotecznego na zakup nieruchomości. Posiadamy oferty wielu banków.

Rejestrowane dane osobowe będą wykorzystywane wyłącznie w ramach świadczonych usług. 

Dane dotyczące nieruchomości zostały podane przez właściciela lub zostały wpisane na podstawie dokumentacji przedstawionej przez niego. Nie bierzemy odpowiedzialności za ich prawidłowość, kompletność i aktualność oraz techniczny stan nieruchomości.

Oferta nie stanowi oferty handlowej w rozumieniu kodeksu cywilnego i nie jest wiążąca.

Dane biura:
www.agdomnieruchomosci.pl
AGDOM NIERUCHOMOŚCI
Agnieszka Szarwas
ul. Przedmiejska 20
87-800 Włocławek
Czynne:
Poniedziałek - Piątek 9.00-17.00
e-mail: biuro@agdomnieruchomosci.pl , kontakt@agdomnieruchomosci.pl

Nie ma Nas w biurze?
Jesteśmy u klienta. Prosimy Państwa wówczas o kontakt telefoniczny:  731 366 966 Agnieszka Szarwas, 662 086 123 Zbigniew Nowakowski





 

Nota prawna

Opis oferty zawarty na stronie internetowej sporządzany jest na podstawie oględzin nieruchomości oraz informacji uzyskanych od właściciela, może podlegać aktualizacji i nie stanowi oferty określonej w art. 66 i następnych K.C.

Szczegóły oferty

Symbol oferty AGD-DS-878
Powierzchnia 200,00 m²
Powierzchnia działki 3 914 m²
Liczba pokoi 4
Rodzaj domu wolnostojący
Technologia budowlana suporeks
Standard
Garaż w bryle
Ukształtowanie działki płaska
Kształt działki nieregularny
Pokrycie dachu blachodachówka
Stan budynku surowy otwarty
Ogrodzenie działki siatka w ramach

Pomieszczenia

Typ kuchni otwarta na salon
Rodzaj kuchni aneks kuchenny - połączony z salonem
Liczba łazienek 1
Liczba WC 1
Liczba przedpokoi 1

Kalkulator kredytowy

PLN
%
Wysokość raty

Kalkulator kosztów

PLN
PLN
PLN
PLN
PLN
PLN
%
PLN
Podatek od czynności cywilno-prawnych
Taksa notarialna (opłata notarialna)
VAT od taksy notarialnej (opłaty notarialnej)
Wniosek do WKW
VAT od wniosku do WKW
Prowizja agencji nieruchomości
VAT od prowizji agencji nieruchomości
Wypisy aktu notarialnego - około
RAZEM (cena + opłaty)

Napisz do nas

Proszę wypełnić to pole
Proszę wypełnić to pole
Proszę wypełnić to pole
Proszę wypełnić to pole
Trwa wysyłanie...

Ta strona wykorzystuje pliki cookies w celach statystycznych oraz w celu dostosowania naszych serwisów do indywidualnych potrzeb klientów. Zmiany ustawień dotyczących plików cookie można dokonać w dowolnej chwili modyfikując ustawienia przeglądarki. Korzystanie z tej strony bez zmian ustawień dotyczących cookies oznacza, że będą one zapisane w pamięci urządzenia.

rozumiem